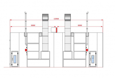
Покрасочная камера KRW1254-MG, 12 х 5 х 4 м., 60 000 м3/ч
Покрасочно-сушильная камера для коммерческих автомобилей и специальной техники 12 х 5 х 4 м., 4х5,5 кВт и 2х7,5 кВт, 60 000 м3/ч, 2 шт. газовые двухступенчатые горелки, освещение LED 16 верхних горизонтальных и 16 нижних вертикальных светильников 1440 Вт, тепловая мощность 520 кВт, 4-х створчатые ворота, вытяжка через стены.
Подробнее
197 294 BYN
Наличие уточняйте
-
+
В корзину
Обращаем Ваше внимание на то, что приведенные цены, характеристики и фотографии товаров носят исключительно ознакомительный характер и не являются публичной офертой, определяемой положениями ст. 405 Гражданского кодекса Республики Беларусь.
Описание
Внутренние размеры длина
12,00 м
ширина
5,00 м
высота
4,00 м
Внешние размеры длина
12,15 м
ширина
6,8 м
высота
4,6 м
Размер створа ворот ширина
4,00 м
высота
4,00 м
Эл. мощность освещения ( 32 светильника)
LED 1440 Вт
Мощность эл.двигателей
4 x 5,5 и 2 х 7,5 = 37 кВт
Воздушный поток
60000 м3/ч
Рабочая тепловая мощность
520 кВт
Конструкция кабины:
Монтируется на ровный бетонный пол
Вытяжка осуществляется.через секции, расположенные в основании стен
Утепленные EPS пластифицированные стеновые панели толщиной 75мм, состояще из двух оцинкованных листов толщиной 0.476 мм каждый и покрытые пластиком с внешних сторон, со специальным антибликовым покрытием. Все панели изготовлены с использованием роботизированных технологий сварки и прессовки.
Утепленного потолка
Фильтры
Предварительные G3, улавливающих 10 мк
Потолочные тонкой очистки G/F5, 600G, улавливающие 5 мк (по всей длине потолка кабины)
Экстракционные в стенах G3, улавливающие 98% использованной краски
Освещение LED (1440 Вт): верхнее наклонное 16 светильников, каждый состоит из 4 ламп (16х4х15=960 Вт), нижнее вертикальное 16 светильников, каждый состоит из 2 ламп (16х2х15=480 Вт)
Въездные 4-х створчатые ворота (каждая створка со смотровым окном 5 х 500 х 1200 мм) шириной4,0 м. и высотой 4,0 м с большой алюминиевой ручкой
Роликовые ворота с электроприводом, расположенные в середине камеры, которые делят ее на две равных части длиной 6 м. каждая.
4 сервисных двери 800 х 2000 мм со смотровым стеклом (300 х 1200 мм)
Группа притока, состоящая из двух приточных блоков, каждый из которых включает в себя:
Газовую двухступенчатую горелку Rielo RS5 Natural (расход 28 м3)
Двухступенчаты теплообменник из нержавеющей стали300 кКал/ч
Два нагнетающих вентилятора с двумя электродвигателями по 5,5 кВт каждый
Фильтры предварительной очистки воздуха
Пневматическую рециркуляционную заслонку, управляемую с пульта управления
Группа вытяжки, состоящая из двух вытяжных блоков, каждый из которых включает в себя:
Вытяжный вентилятор с электродвигателем 7,5 кВт
Фильтры окончательной очистки воздуха (предотвращают образование налета краски на лопатках вентилятора и появление вибрации)
Дополнительно;
4 комплекта воздуховодов, каждый из которых состоит из 3 прямых, 1 угловой 90град и 1 угловой 45 град секций.
2 выхлопные трубы длиной 5 м. каждая
Управление:
Современный микрокомпьютерный пульт управления всеми системами (380 В, 24 В)
Режим окраски
Режим сушки
Счетчик рабочего времени
Счетчик времени окраски и сушки
Датчик давления
2 экстренных выключателя
Предохранительное устройство от перегрева
Технические данные:
Производительность вентиляционной системы
60.000 м3/ч
Скорость потока (в пустой камере)
0,3 м/с
Тепловая мощность
520 кВт
Тепловой КПД
92 %
Установленная электрическая мощность
40 кВт
Рециркуляция воздуха в режиме сушки
90 %
Освещенность
LED1440 Вт
12,00 м
ширина
5,00 м
высота
4,00 м
Внешние размеры длина
12,15 м
ширина
6,8 м
высота
4,6 м
Размер створа ворот ширина
4,00 м
высота
4,00 м
Эл. мощность освещения ( 32 светильника)
LED 1440 Вт
Мощность эл.двигателей
4 x 5,5 и 2 х 7,5 = 37 кВт
Воздушный поток
60000 м3/ч
Рабочая тепловая мощность
520 кВт
Конструкция кабины:
Монтируется на ровный бетонный пол
Вытяжка осуществляется.через секции, расположенные в основании стен
Утепленные EPS пластифицированные стеновые панели толщиной 75мм, состояще из двух оцинкованных листов толщиной 0.476 мм каждый и покрытые пластиком с внешних сторон, со специальным антибликовым покрытием. Все панели изготовлены с использованием роботизированных технологий сварки и прессовки.
Утепленного потолка
Фильтры
Предварительные G3, улавливающих 10 мк
Потолочные тонкой очистки G/F5, 600G, улавливающие 5 мк (по всей длине потолка кабины)
Экстракционные в стенах G3, улавливающие 98% использованной краски
Освещение LED (1440 Вт): верхнее наклонное 16 светильников, каждый состоит из 4 ламп (16х4х15=960 Вт), нижнее вертикальное 16 светильников, каждый состоит из 2 ламп (16х2х15=480 Вт)
Въездные 4-х створчатые ворота (каждая створка со смотровым окном 5 х 500 х 1200 мм) шириной4,0 м. и высотой 4,0 м с большой алюминиевой ручкой
Роликовые ворота с электроприводом, расположенные в середине камеры, которые делят ее на две равных части длиной 6 м. каждая.
4 сервисных двери 800 х 2000 мм со смотровым стеклом (300 х 1200 мм)
Группа притока, состоящая из двух приточных блоков, каждый из которых включает в себя:
Газовую двухступенчатую горелку Rielo RS5 Natural (расход 28 м3)
Двухступенчаты теплообменник из нержавеющей стали300 кКал/ч
Два нагнетающих вентилятора с двумя электродвигателями по 5,5 кВт каждый
Фильтры предварительной очистки воздуха
Пневматическую рециркуляционную заслонку, управляемую с пульта управления
Группа вытяжки, состоящая из двух вытяжных блоков, каждый из которых включает в себя:
Вытяжный вентилятор с электродвигателем 7,5 кВт
Фильтры окончательной очистки воздуха (предотвращают образование налета краски на лопатках вентилятора и появление вибрации)
Дополнительно;
4 комплекта воздуховодов, каждый из которых состоит из 3 прямых, 1 угловой 90град и 1 угловой 45 град секций.
2 выхлопные трубы длиной 5 м. каждая
Управление:
Современный микрокомпьютерный пульт управления всеми системами (380 В, 24 В)
Режим окраски
Режим сушки
Счетчик рабочего времени
Счетчик времени окраски и сушки
Датчик давления
2 экстренных выключателя
Предохранительное устройство от перегрева
Технические данные:
Производительность вентиляционной системы
60.000 м3/ч
Скорость потока (в пустой камере)
0,3 м/с
Тепловая мощность
520 кВт
Тепловой КПД
92 %
Установленная электрическая мощность
40 кВт
Рециркуляция воздуха в режиме сушки
90 %
Освещенность
LED1440 Вт
Характеристики
|
Напряжение питания, В
|
220/380 |
|
Производительность вытяжки, м³/час
|
60000 |
|
Мощность освещения, Вт
|
LED1440 |
|
Разделение камер
|
на роликах с эл. приводом |
|
Кол-во сервисных дверей
|
4 |
|
Вид топлива
|
газ |
|
Потребляемая мощность, кВт
|
40 |
|
Длина, мм
|
12000 |
|
Ширина, мм
|
5000 |
|
Высота, мм
|
4000 |








