Подъемник строительный ПС-320 "Умелец"
Подъемник строительный Умелец ПС-320 предназначен для подъема, спуска и перемещения внутрь проемов зданий и сооружений различных строительных материалов и оборудования массой до 320кг. Допускается установка подъемника на крышах зданий или сооружений при условии защиты его от атмосферных осадков.
Кран в окно Умелец является переставным грузоподъемным механизмом, перемещаемым с одного участка работы на другой вручную. Для удобства перемещения и установки в рабочем положении подъемник Умелец оснащен: на стойках задних - опорными колесами с фиксаторами; на стойках передних - регулировочными винтовыми опорами (домкратами).
Допускается эксплуатация строительного подъемника Умелец при температуре окружающей среды не выше +40С и не ниже -40С и влажности 75%. В части воздействия климатических факторов подъемник соответствует У2 по ГОСТ 15150.
Разработана оригинальная конструкция крана в окно с вылетом стрелы 2м и колесами позволяющими легко передвигать кран, уникальный тросоукладчик, обеспечивающий длительный срок службы каната, а также высокопрочное покрытие, позволяющее сохранять отличный внешний вид в течение всего срока службы.
Кран в окно Умелец ПС-320 поставляется в разобранном виде. Комплект поставки также включает в себя документацию: паспорт на редуктор, паспорт на электродвигатель, руководство по эксплуатации. Порядок сборки указан в руководстве по эксплуатации. Руководство по эксплуатации крана Умелец совмещено с паспортом.
Подъемник Умелец не допускается эксплуатировать во взрывоопасных и пожароопасных средах, в помещениях, насыщенных парами кислот, щелочей и других веществ в концентрациях, приводящих к коррозии металла и разрушающих изоляцию электропроводки, а также для подъема и перемещения людей, ядовитых веществ, жидкого и раскаленного металла.
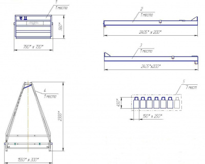
Подъемник Умелец ПС-320 состоит из следующих основных узлов и деталей: кошки 6 с подвеской 7, балок 2 и 3, стойки передней 4, стойки задней 5, стяжек 11 и 12, лебедки электрической 1. Металлоконструкции подъемника крепятся между собой стандартными крепежными изделиями, сборочными единицами и деталями, входящими в комплектацию подъёмника.
Устойчивость подъемника во время эксплуатации обеспечивается противовесами 9 в количестве 7 штук, либо домкратом распорным 30 (с двумя распорными втулками), перекрывающим диапазон высот до потолка от 2.6м до 3.1м. Распорные домкраты не входят в стандартный комплект поставки - поставляются по дополнительному требованию заказчика.
Балки 2 и 3 изготовлены из двутавра №12 с приварными фланцами для крепления между собой в единую пролетную балку болтовым соединением М16 и к стойкам болтовым соединением М12. Стойки и стяжки выполнены из труб круглого сечения. Стяжки крепятся к стойкам и пролётной балке болтовым соединением М10.
Лебедка крепится на задней стойке болтовым соединением М12. Лебедка состоит из рамы, на которой закреплены мотор-редуктор и барабан, насаженный одной стороной на выходной вал редуктора, а другой - на подшипниковую опору. Под барабаном расположен прижимной ролик для обеспечения более качественной навивки каната. Вращающийся барабан огражден защитным кожухом. Возле редуктора на раме закреплен кронштейн с электрическим пультом управления. От пульта отходит кабель с кнопочным тельферным постом и микровыключателем, который в процессе эксплуатации крепится к передвижной кошке.
Рабочим органом подъемника является подвеска 7 с кошкой 6. Подъем/опускание подвески осуществляется лебедкой, а перемещение кошки по пролетной балке осуществляется вручную. Кошка имеет специальный фиксатор, который зацепляется за крюк, расположенный на конце балки, и не позволяет кошке перемещаться во время подъема/опускания подвески.
Также на схеме отмечены: 8 - струна; 13 - ручка-фиксатор; 14 - пост тельферный; 15 - ролик в сборе.
В состав электрооборудования крана Умелец входят: электродвигатель со встроенным электромагнитным тормозом, пост тельферный, микровыключатель, пускатели, выключатель автоматический. Микровыключатель расположен на кошке и отключает электродвигатель при подъеме подвески до крайнего верхнего рабочего положения.
Включение лебедки осуществляется автоматическим выключателем на пульте лебедки, а управление - постом кнопочным тельферным 14.
Кран Умелец имеет срок гарантии 12 месяцев со дня ввода подъемника в эксплуатацию, но не более 18 месяцев со дня отгрузки с предприятия-изготовителя. Указанный срок гарантии не распространяется на грузовой канат. Средний срок службы подъемника строительного Умелец не менее 36 месяцев.
Кран в окно Умелец является переставным грузоподъемным механизмом, перемещаемым с одного участка работы на другой вручную. Для удобства перемещения и установки в рабочем положении подъемник Умелец оснащен: на стойках задних - опорными колесами с фиксаторами; на стойках передних - регулировочными винтовыми опорами (домкратами).
Допускается эксплуатация строительного подъемника Умелец при температуре окружающей среды не выше +40С и не ниже -40С и влажности 75%. В части воздействия климатических факторов подъемник соответствует У2 по ГОСТ 15150.
Разработана оригинальная конструкция крана в окно с вылетом стрелы 2м и колесами позволяющими легко передвигать кран, уникальный тросоукладчик, обеспечивающий длительный срок службы каната, а также высокопрочное покрытие, позволяющее сохранять отличный внешний вид в течение всего срока службы.
Кран в окно Умелец ПС-320 поставляется в разобранном виде. Комплект поставки также включает в себя документацию: паспорт на редуктор, паспорт на электродвигатель, руководство по эксплуатации. Порядок сборки указан в руководстве по эксплуатации. Руководство по эксплуатации крана Умелец совмещено с паспортом.
Подъемник Умелец не допускается эксплуатировать во взрывоопасных и пожароопасных средах, в помещениях, насыщенных парами кислот, щелочей и других веществ в концентрациях, приводящих к коррозии металла и разрушающих изоляцию электропроводки, а также для подъема и перемещения людей, ядовитых веществ, жидкого и раскаленного металла.
Подъемник Умелец ПС-320 состоит из следующих основных узлов и деталей: кошки 6 с подвеской 7, балок 2 и 3, стойки передней 4, стойки задней 5, стяжек 11 и 12, лебедки электрической 1. Металлоконструкции подъемника крепятся между собой стандартными крепежными изделиями, сборочными единицами и деталями, входящими в комплектацию подъёмника.
Устойчивость подъемника во время эксплуатации обеспечивается противовесами 9 в количестве 7 штук, либо домкратом распорным 30 (с двумя распорными втулками), перекрывающим диапазон высот до потолка от 2.6м до 3.1м. Распорные домкраты не входят в стандартный комплект поставки - поставляются по дополнительному требованию заказчика.
Балки 2 и 3 изготовлены из двутавра №12 с приварными фланцами для крепления между собой в единую пролетную балку болтовым соединением М16 и к стойкам болтовым соединением М12. Стойки и стяжки выполнены из труб круглого сечения. Стяжки крепятся к стойкам и пролётной балке болтовым соединением М10.
Лебедка крепится на задней стойке болтовым соединением М12. Лебедка состоит из рамы, на которой закреплены мотор-редуктор и барабан, насаженный одной стороной на выходной вал редуктора, а другой - на подшипниковую опору. Под барабаном расположен прижимной ролик для обеспечения более качественной навивки каната. Вращающийся барабан огражден защитным кожухом. Возле редуктора на раме закреплен кронштейн с электрическим пультом управления. От пульта отходит кабель с кнопочным тельферным постом и микровыключателем, который в процессе эксплуатации крепится к передвижной кошке.
Рабочим органом подъемника является подвеска 7 с кошкой 6. Подъем/опускание подвески осуществляется лебедкой, а перемещение кошки по пролетной балке осуществляется вручную. Кошка имеет специальный фиксатор, который зацепляется за крюк, расположенный на конце балки, и не позволяет кошке перемещаться во время подъема/опускания подвески.
Также на схеме отмечены: 8 - струна; 13 - ручка-фиксатор; 14 - пост тельферный; 15 - ролик в сборе.
В состав электрооборудования крана Умелец входят: электродвигатель со встроенным электромагнитным тормозом, пост тельферный, микровыключатель, пускатели, выключатель автоматический. Микровыключатель расположен на кошке и отключает электродвигатель при подъеме подвески до крайнего верхнего рабочего положения.
Включение лебедки осуществляется автоматическим выключателем на пульте лебедки, а управление - постом кнопочным тельферным 14.
Кран Умелец имеет срок гарантии 12 месяцев со дня ввода подъемника в эксплуатацию, но не более 18 месяцев со дня отгрузки с предприятия-изготовителя. Указанный срок гарантии не распространяется на грузовой канат. Средний срок службы подъемника строительного Умелец не менее 36 месяцев.
Подробнее
8 003 BYN
Наличие уточняйте
-
+
В корзину
Обращаем Ваше внимание на то, что приведенные цены, характеристики и фотографии товаров носят исключительно ознакомительный характер и не являются публичной офертой, определяемой положениями ст. 405 Гражданского кодекса Республики Беларусь.
Описание
Подъемник строительный Умелец ПС-320 предназначен для подъема, спуска и перемещения внутрь проемов зданий и сооружений различных строительных материалов и оборудования массой до 320кг. Допускается установка подъемника на крышах зданий или сооружений при условии защиты его от атмосферных осадков.
Кран в окно Умелец является переставным грузоподъемным механизмом, перемещаемым с одного участка работы на другой вручную. Для удобства перемещения и установки в рабочем положении подъемник Умелец оснащен: на стойках задних - опорными колесами с фиксаторами; на стойках передних - регулировочными винтовыми опорами (домкратами).
Допускается эксплуатация строительного подъемника Умелец при температуре окружающей среды не выше +40С и не ниже -40С и влажности 75%. В части воздействия климатических факторов подъемник соответствует У2 по ГОСТ 15150.
Разработана оригинальная конструкция крана в окно с вылетом стрелы 2м и колесами позволяющими легко передвигать кран, уникальный тросоукладчик, обеспечивающий длительный срок службы каната, а также высокопрочное покрытие, позволяющее сохранять отличный внешний вид в течение всего срока службы.
Кран в окно Умелец ПС-320 поставляется в разобранном виде. Комплект поставки также включает в себя документацию: паспорт на редуктор, паспорт на электродвигатель, руководство по эксплуатации. Порядок сборки указан в руководстве по эксплуатации. Руководство по эксплуатации крана Умелец совмещено с паспортом.
Подъемник Умелец не допускается эксплуатировать во взрывоопасных и пожароопасных средах, в помещениях, насыщенных парами кислот, щелочей и других веществ в концентрациях, приводящих к коррозии металла и разрушающих изоляцию электропроводки, а также для подъема и перемещения людей, ядовитых веществ, жидкого и раскаленного металла.
Подъемник Умелец ПС-320 состоит из следующих основных узлов и деталей: кошки 6 с подвеской 7, балок 2 и 3, стойки передней 4, стойки задней 5, стяжек 11 и 12, лебедки электрической 1. Металлоконструкции подъемника крепятся между собой стандартными крепежными изделиями, сборочными единицами и деталями, входящими в комплектацию подъёмника.
Устойчивость подъемника во время эксплуатации обеспечивается противовесами 9 в количестве 7 штук, либо домкратом распорным 30 (с двумя распорными втулками), перекрывающим диапазон высот до потолка от 2.6м до 3.1м. Распорные домкраты не входят в стандартный комплект поставки - поставляются по дополнительному требованию заказчика.
Балки 2 и 3 изготовлены из двутавра №12 с приварными фланцами для крепления между собой в единую пролетную балку болтовым соединением М16 и к стойкам болтовым соединением М12. Стойки и стяжки выполнены из труб круглого сечения. Стяжки крепятся к стойкам и пролётной балке болтовым соединением М10.
Лебедка крепится на задней стойке болтовым соединением М12. Лебедка состоит из рамы, на которой закреплены мотор-редуктор и барабан, насаженный одной стороной на выходной вал редуктора, а другой - на подшипниковую опору. Под барабаном расположен прижимной ролик для обеспечения более качественной навивки каната. Вращающийся барабан огражден защитным кожухом. Возле редуктора на раме закреплен кронштейн с электрическим пультом управления. От пульта отходит кабель с кнопочным тельферным постом и микровыключателем, который в процессе эксплуатации крепится к передвижной кошке.
Рабочим органом подъемника является подвеска 7 с кошкой 6. Подъем/опускание подвески осуществляется лебедкой, а перемещение кошки по пролетной балке осуществляется вручную. Кошка имеет специальный фиксатор, который зацепляется за крюк, расположенный на конце балки, и не позволяет кошке перемещаться во время подъема/опускания подвески.
Также на схеме отмечены: 8 - струна; 13 - ручка-фиксатор; 14 - пост тельферный; 15 - ролик в сборе.
В состав электрооборудования крана Умелец входят: электродвигатель со встроенным электромагнитным тормозом, пост тельферный, микровыключатель, пускатели, выключатель автоматический. Микровыключатель расположен на кошке и отключает электродвигатель при подъеме подвески до крайнего верхнего рабочего положения.
Включение лебедки осуществляется автоматическим выключателем на пульте лебедки, а управление - постом кнопочным тельферным 14.
Кран Умелец имеет срок гарантии 12 месяцев со дня ввода подъемника в эксплуатацию, но не более 18 месяцев со дня отгрузки с предприятия-изготовителя. Указанный срок гарантии не распространяется на грузовой канат. Средний срок службы подъемника строительного Умелец не менее 36 месяцев.
Кран в окно Умелец является переставным грузоподъемным механизмом, перемещаемым с одного участка работы на другой вручную. Для удобства перемещения и установки в рабочем положении подъемник Умелец оснащен: на стойках задних - опорными колесами с фиксаторами; на стойках передних - регулировочными винтовыми опорами (домкратами).
Допускается эксплуатация строительного подъемника Умелец при температуре окружающей среды не выше +40С и не ниже -40С и влажности 75%. В части воздействия климатических факторов подъемник соответствует У2 по ГОСТ 15150.
Разработана оригинальная конструкция крана в окно с вылетом стрелы 2м и колесами позволяющими легко передвигать кран, уникальный тросоукладчик, обеспечивающий длительный срок службы каната, а также высокопрочное покрытие, позволяющее сохранять отличный внешний вид в течение всего срока службы.
Кран в окно Умелец ПС-320 поставляется в разобранном виде. Комплект поставки также включает в себя документацию: паспорт на редуктор, паспорт на электродвигатель, руководство по эксплуатации. Порядок сборки указан в руководстве по эксплуатации. Руководство по эксплуатации крана Умелец совмещено с паспортом.
Подъемник Умелец не допускается эксплуатировать во взрывоопасных и пожароопасных средах, в помещениях, насыщенных парами кислот, щелочей и других веществ в концентрациях, приводящих к коррозии металла и разрушающих изоляцию электропроводки, а также для подъема и перемещения людей, ядовитых веществ, жидкого и раскаленного металла.
Подъемник Умелец ПС-320 состоит из следующих основных узлов и деталей: кошки 6 с подвеской 7, балок 2 и 3, стойки передней 4, стойки задней 5, стяжек 11 и 12, лебедки электрической 1. Металлоконструкции подъемника крепятся между собой стандартными крепежными изделиями, сборочными единицами и деталями, входящими в комплектацию подъёмника.
Устойчивость подъемника во время эксплуатации обеспечивается противовесами 9 в количестве 7 штук, либо домкратом распорным 30 (с двумя распорными втулками), перекрывающим диапазон высот до потолка от 2.6м до 3.1м. Распорные домкраты не входят в стандартный комплект поставки - поставляются по дополнительному требованию заказчика.
Балки 2 и 3 изготовлены из двутавра №12 с приварными фланцами для крепления между собой в единую пролетную балку болтовым соединением М16 и к стойкам болтовым соединением М12. Стойки и стяжки выполнены из труб круглого сечения. Стяжки крепятся к стойкам и пролётной балке болтовым соединением М10.
Лебедка крепится на задней стойке болтовым соединением М12. Лебедка состоит из рамы, на которой закреплены мотор-редуктор и барабан, насаженный одной стороной на выходной вал редуктора, а другой - на подшипниковую опору. Под барабаном расположен прижимной ролик для обеспечения более качественной навивки каната. Вращающийся барабан огражден защитным кожухом. Возле редуктора на раме закреплен кронштейн с электрическим пультом управления. От пульта отходит кабель с кнопочным тельферным постом и микровыключателем, который в процессе эксплуатации крепится к передвижной кошке.
Рабочим органом подъемника является подвеска 7 с кошкой 6. Подъем/опускание подвески осуществляется лебедкой, а перемещение кошки по пролетной балке осуществляется вручную. Кошка имеет специальный фиксатор, который зацепляется за крюк, расположенный на конце балки, и не позволяет кошке перемещаться во время подъема/опускания подвески.
Также на схеме отмечены: 8 - струна; 13 - ручка-фиксатор; 14 - пост тельферный; 15 - ролик в сборе.
В состав электрооборудования крана Умелец входят: электродвигатель со встроенным электромагнитным тормозом, пост тельферный, микровыключатель, пускатели, выключатель автоматический. Микровыключатель расположен на кошке и отключает электродвигатель при подъеме подвески до крайнего верхнего рабочего положения.
Включение лебедки осуществляется автоматическим выключателем на пульте лебедки, а управление - постом кнопочным тельферным 14.
Кран Умелец имеет срок гарантии 12 месяцев со дня ввода подъемника в эксплуатацию, но не более 18 месяцев со дня отгрузки с предприятия-изготовителя. Указанный срок гарантии не распространяется на грузовой канат. Средний срок службы подъемника строительного Умелец не менее 36 месяцев.
Характеристики
|
Грузоподъемность, тонн
|
0.32 |
|
Высота подъема, м
|
50/75/100 |
|
Напряжение питания, В
|
3x380 |
|
Мощность двигателя, кВт
|
1.7 |
|
Вылет стрелы, м
|
2.1 |
|
Макс. скорость подъема (опускания) груза, м/мин
|
17.0 |
|
Диаметр каната, мм
|
4.1 |
|
Режим работы по ГОСТ 25835
|
3М/В3 |
|
Габаритные размеры, мм
|
см. схему |
|
Масса противовеса, кг
|
210 |
|
Масса, кг
|
320 |













